Vai ai contenuti

Strutturali - pquadrostudio

Salta menù
Lun - Ven  9:00 - 18:00
+39 379 159  4498  
Salta menù









STRUTTURALI
i suggerimenti statici interpretati e definiti con paziente opera di ricerca e di proporzionamento
sono le più efficaci fonti di ispirazione architettonica.
Pier Luigi Nervi







Salta menù
PROGETTI STUTTURALI
Abitazione in muratura armata
Orbetello, (GR)

La sfida è stata costruire un'abitazione con il minimo impatto ambientale (murature portanti e tetto in legno) in un luogo inaccessibile da betoniere e mezzi pesanti e senza creare nuove strade limitando la profondità delle fondazioni per non arrecare danni al paesaggio maremmano.
Adeguamento sismico e sopraelevazione
Guidonia Montecelio (RM)

Questa abitazione unifamiliare deve essere sopraelevata per la creazione di nuove abitazioni e perciò è stato progettato l'adeguamento sismico, con interventi sulla struttura esistente.



Sopraelevazione ed adeguamento sismico
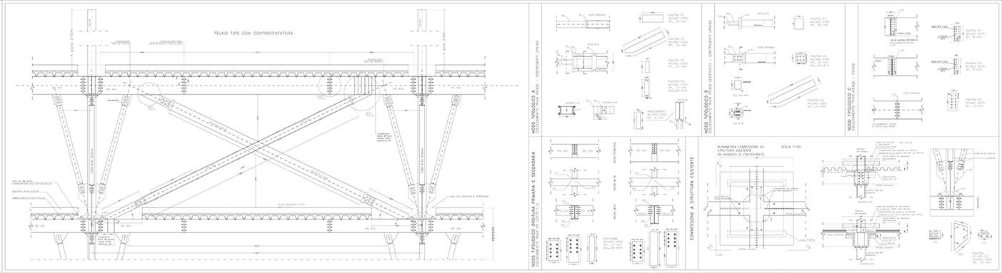
di edificio in c.a ed acciaio ad uso ospedaliero
Roma

La struttura scelta per la sopraelevazione è stata l'acciaio per poter realizzare un manufatto leggero su un fabbricato esistente in calcestruzzo, non predisposto per essere sopraelevato.
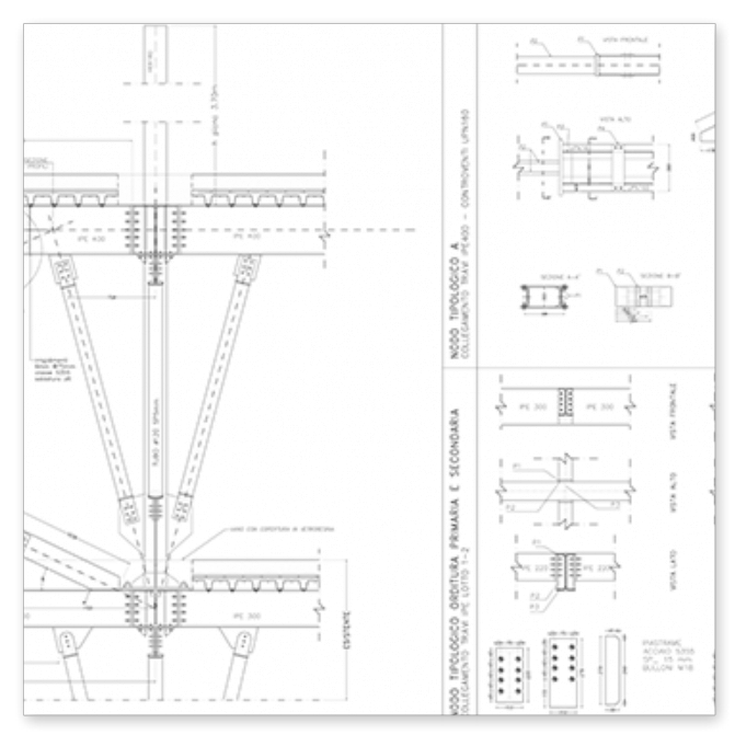
Il fabbricato è costituito da n. 4 lotti da completare in 5 anni con una copertura per pannelli fotovoltaici da 850 kWp e per complessivi 12.000 mq coperti.


Adeguamento sismico di edificio in c.a.
risalente agli anni 80
Roma, loc. Torre Angela

L'adeguamento sismico in edifici in calcestruzzo armato è spesso invasivo ma si rende necessario per supplire a carenze progettuali o perché nei fabbricati si è deciso di inserire nuove funzioni: in questo caso si è preferito integrare le armature e ringrossare le sezioni dei pilastri.
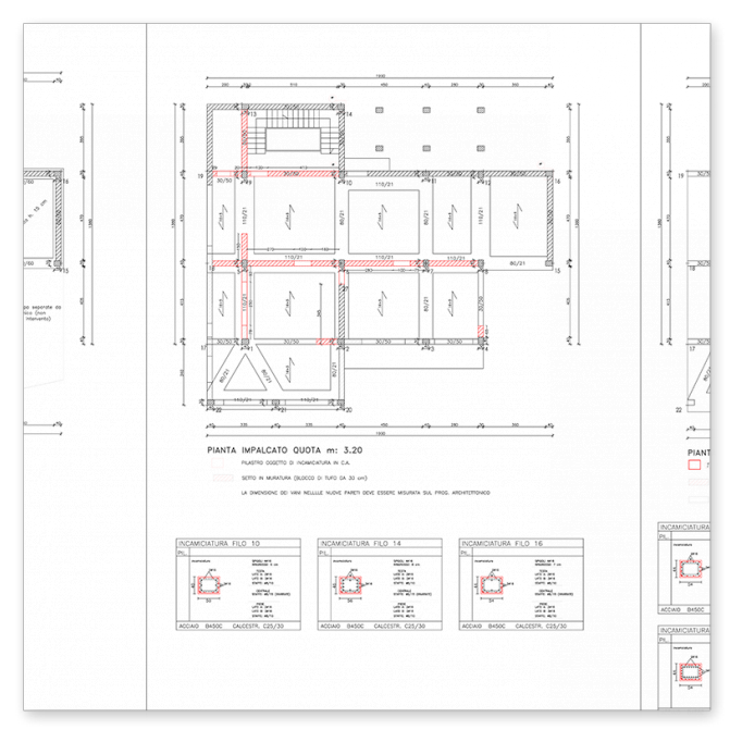
Progetto strutturale di edificio pluripiano
ad uso residenziale con demolizione
del fabbricato esistente
Roma, loc. Morena

La sfida è stata realizzare un fabbricato di 6 piani all'interno di un lotto già edificato e scavato: si sono prima consolidate le pareti in c.a., quindi demolito l'esistente e successivamente realizzata la struttura in elevazione. Sono stati necessari pilastri in falso per assecondare i distacchi. Anche i progetti architettonico e termotecnico sono stati curati dal nostro studio.

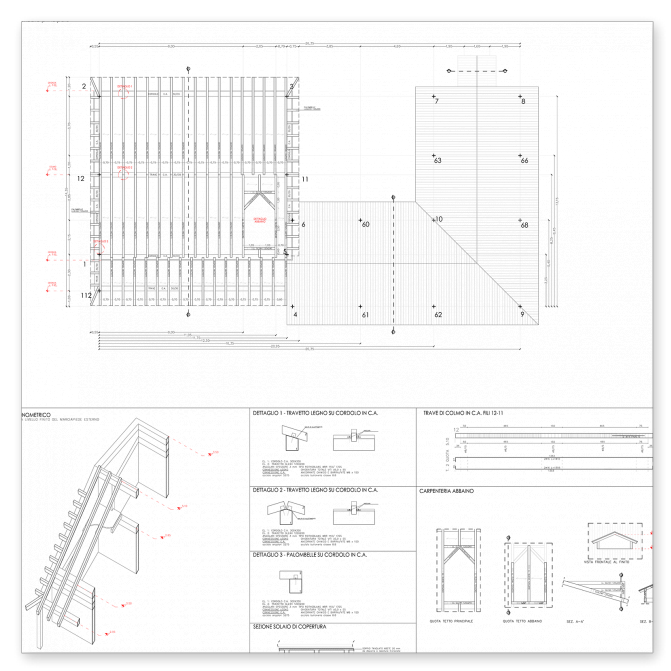
Edificio in acciaio destinato a teatro di posa.
Roma, loc. Cinecittà

Il teatro è stato realizzato identico a quello bombardato nel 1944, del quale sono rimasti i disegni originali e le foto d'epoca. La sfida è stata quella di diminuire l'impatto ambientale con materiali che soddisfano i criteri CAM e con una tamponatura a secco interamente riciclabile. Inoltre, sono stati soddisfatti i criteri acustici, antisismici e termotecnici attuali, attraverso l'uso di un pacchetto calibrato per contenere la dispersione termica e limitare ponti acustici e termici. Il progetto architettonico, strutturale e termotecnico sono stati realizzati dal nostro studio.
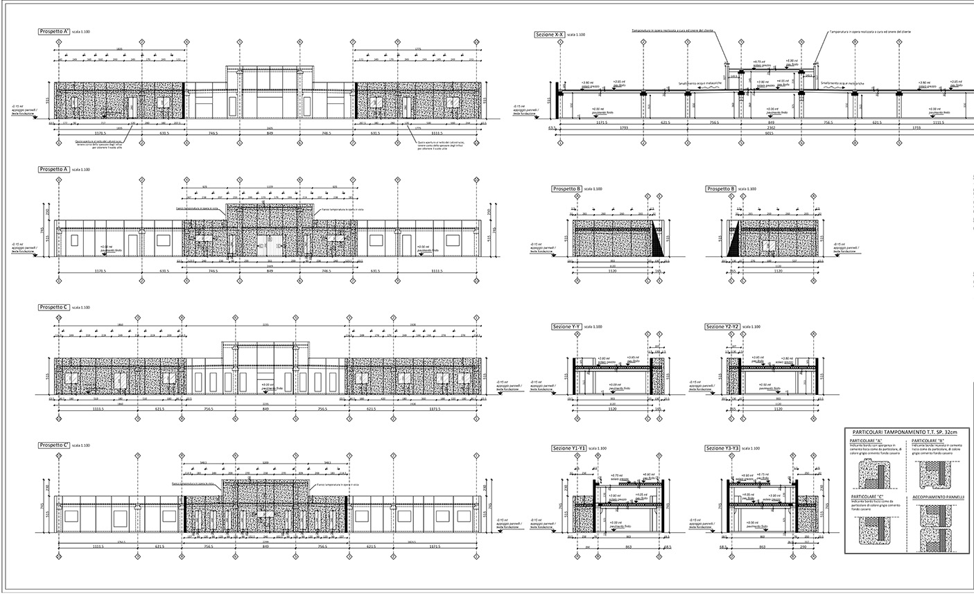
Edificio ospedaliero realizzato con struttura prefabbricata.
Roma

Il progetto è stato condizionato da 3 fattori: lotto angusto, fondazione superficiale a causa della presenza dello strato archeologico e tempi di realizzazione ridotti, perciò si è optato per una struttura prefabbricata con pannelli già coibentati.
pquadrosrtudio  | P.iva 07257221007 |  Privacy policy
Copyright © 2023. All Rights Reserved.
Via delle Genziane, 13d  - 00012 Guidonia Montecelio (ROMA)
+39 397 159 4498  
+39 347 183  8334
 info@pquadrostudio.eu
Long.  12.70268    Lat. 41.96232



PROGETTI
myCompany  / P.iva 00000000  /  Privacy policy
myCompany  | P.iva 00000000
Copyright © 2018. All Rights Reserved.
Salta menù
CONTATTI
Torna ai contenuti